Skip to content
Search for:
Home
About
Portfolio
55+ Housing
Conventional Lot
Custom
Land Planning
Multi-Family
Recreation
Single Family Attached
Small Lot
Contact
Loading...
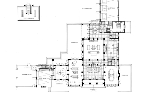
MATKEN PACIFIC | RUBY HILL LOT C1
Matken Pacific, Ruby Hill Lot C1
admin
2024-10-31T10:40:13-07:00
Project Description
Board Images
Page load link